Объект и исходные данные
Объектом проектирования является реконструкция здания мастерских под банный комплекс, расположенный по адресу: г. Хабаровск, ул. Горького, 57А.
В рамках проекта выполнена разработка Раздела 2 проектной документации — Схемы планировочной организации земельного участка (СПОЗУ). Основанием для проектирования послужили: задание заказчика и градостроительный план земельного участка от 28.08.2023 г.
Земельный участок полностью расположен в границах зон с особыми условиями использования территории, связанных с приаэродромной территорией аэродрома Хабаровск (Новый). Для территории установлены ограничения, направленные на обеспечение безопасности воздушного движения.
Они включают:
- ограничения по высоте объектов капитального строительства;
- запрет размещения объектов, создающих помехи работе наземных средств обслуживания воздушного движения, навигации, посадки и связи;
- запрет размещения объектов, способствующих привлечению и массовому скоплению птиц.
Проектируемый банный комплекс не относится к объектам, подпадающим под указанные ограничения. Высота здания также не превышает установленные ограничения для соответствующих подзон приаэродромной территории. Санитарно-защитные зоны для объекта не требуются.
Технико-экономические показатели участка
| Показатель | Значение |
|---|---|
| Площадь земельного участка | 2042 м² |
| Площадь застройки здания после реконструкции | 787,7 м² |
| Процент застройки | 39% |
| Максимально допустимый процент застройки | 60% |
Параметры застройки соответствуют требованиям градостроительного плана земельного участка.
Планировочная организация участка
Схема планировочной организации участка разработана с учётом существующей застройки территории и сложившейся системы транспортных связей.
Проект предусматривает размещение реконструируемого здания банного комплекса в пределах существующего земельного участка без изменения транспортной структуры района.
В рамках разработки СПОЗУ приняты решения по:
- размещению здания на участке;
- организации подъезда и транспортного обслуживания;
- вертикальной планировке территории;
- благоустройству участка;
- организации отвода поверхностных вод.
Разработанная схема планировочной организации земельного участка обеспечивает размещение реконструируемого банного комплекса в границах существующего участка с учётом требований градостроительного регламента и ограничений приаэродромной территории.
Проектные решения предусматривают рациональное использование территории участка, организацию транспортного доступа, благоустройство территории и систему отвода поверхностных вод, что позволяет обеспечить безопасную и удобную эксплуатацию объекта.
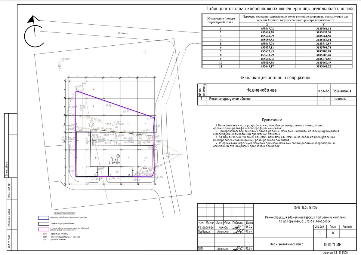
Вертикальная планировка и водоотвод
Рельеф участка имеет небольшой уклон с запада на восток не менее 5%. Перепад отметок на территории составляет до 0,35 м. Вертикальная планировка территории выполнена с учётом существующего рельефа и требований по отводу поверхностных вод.
Проектом предусмотрены следующие решения:
- разуклонка поверхности от здания;
- формирование общего уклона в сторону внутриквартальной дороги;
- организация поверхностного стока;
- устройство дренажных систем;
- отвод поверхностных вод в ливневую канализацию.
Дополнительно площадка под зданием поднята относительно возможного уровня подтопления за счёт проектного решения фундаментов. Принятые меры обеспечивают защиту здания и прилегающей территории от подтопления.
Благоустройство территории
Проектом предусмотрено благоустройство участка в границах предоставленной территории.
Основные решения включают:
- устройство дорожных покрытий из асфальтобетона;
- организацию автопарковочных мест вблизи здания;
- выделение трёх машино-мест для маломобильных групп населения;
- установку бортовых камней на участках сопряжения дорожных и пешеходных покрытий.
Проектом также предусмотрены условия беспрепятственного передвижения маломобильных групп населения по территории участка и к зданию.
Транспортное обслуживание
Въезд на территорию осуществляется по существующему проезду с ул. Горького.
Существующая схема транспортных коммуникаций района проектом не изменяется. Принятые решения обеспечивают доступ к объекту для посетителей и обслуживающего транспорта.
Состав разработанной документации
В рамках разработки раздела СПОЗУ подготовлен комплект графических материалов:
- Общие данные.
- Ситуационная схема.
- Схема планировочной организации земельного участка.
- План организации рельефа.
- План благоустройства.
- Сводный план инженерных сетей.
- Схема транспортного обслуживания и движения пожарной техники.
- План земляных масс.





