Задачи и исходные данные
Задачи: разработать проектную документацию для реконструкции одноэтажного здания магазина 2010 года постройки с увеличением площади, путём возведения Г-образной пристройки; организовать раздельные зоны для продуктового и хозяйственного отделов, предусмотреть достаточные складские площади с разным температурным режимом; разработать пристройку к существующему зданию с использованием современных материалов и технологий, адаптированных к суровым климатическим условиям региона; обеспечить класс энергетической эффективности «В» с учётом длительного отопительного сезона и низких зимних температур; предусмотреть возможность проведения работ без полной остановки торговой деятельности, сохранить существующие инженерные коммуникации и транспортные связи.
Условия работ: п. Де-Кастри, Ульчский район, Хабаровский край, климатический район IВ, расчётная температура наружного воздуха — минус 30° C, продолжительность отопительного периода 276 суток, сейсмичность 6 баллов.
Исходные данные: технический паспорт на здание магазина, градостроительный план земельного участка площадью 600 м², территориальная зона Ж-1.
Технико-экономические показатели объекта до реконструкции
Год ввода в эксплуатацию — 2010.
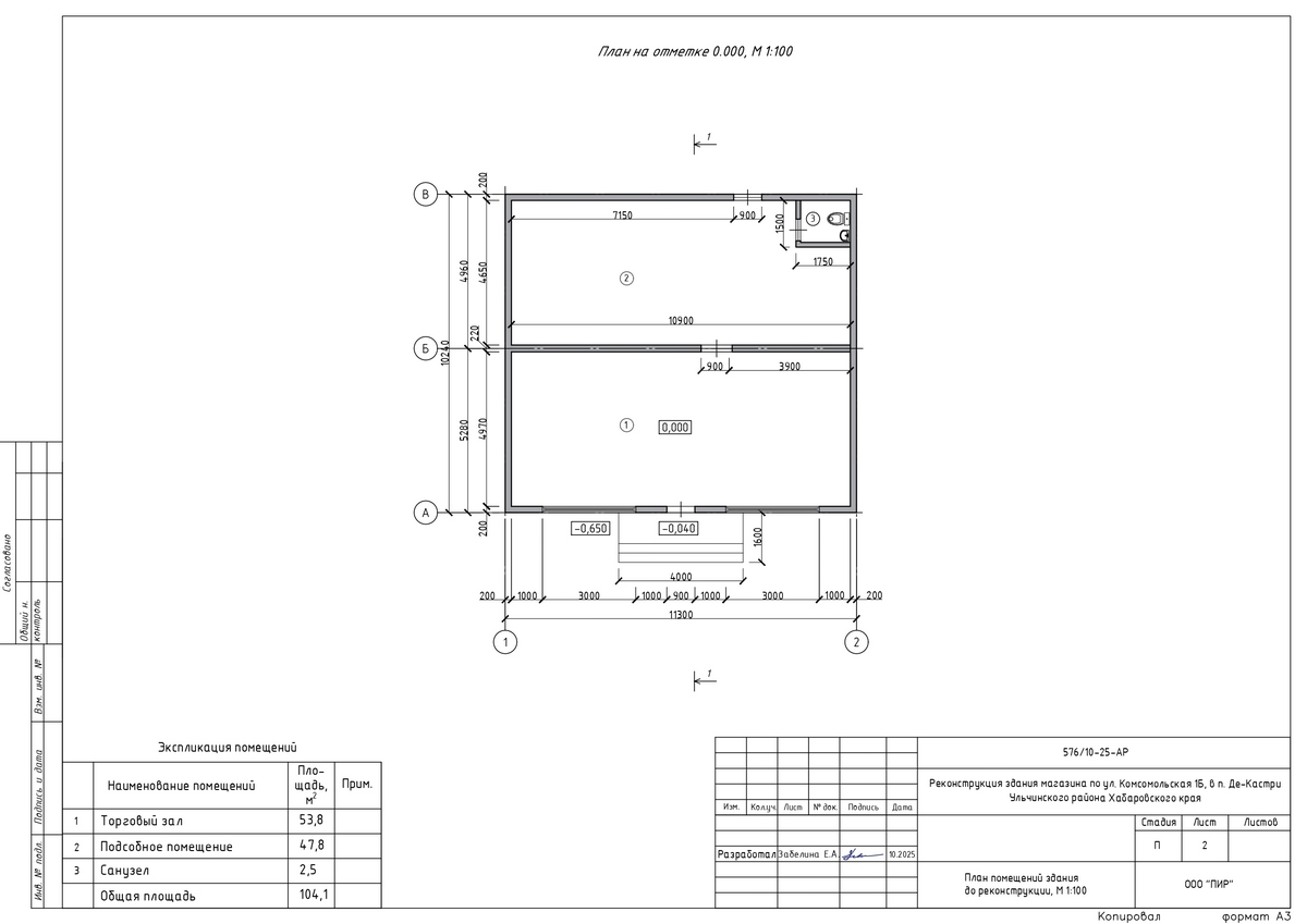
Общая площадь — 104,1 м².
Высота помещений — 2,58 м.
Физический износ — 15%.
Этажность — 1 этаж (прямоугольное здание 11,30×10,24 м).
Площадь участка — 600 м².
Максимальный процент застройки — 80%.
Процент озеленения — 15%.
Транспортное обслуживание — со стороны ул. Комсомольской (существующая схема сохранена).
Архитектурно-строительные решения
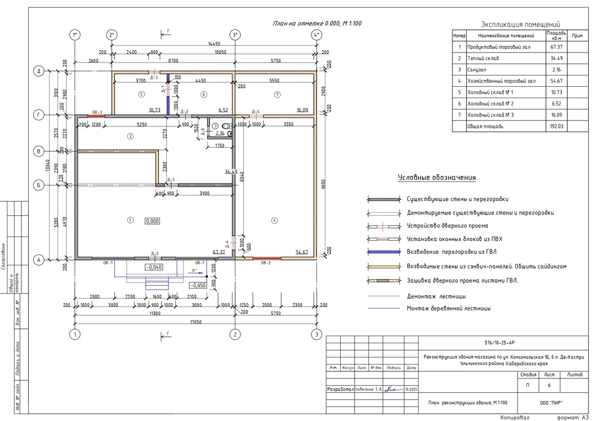
Проектное решение предусматривает создание Г-образной пристройки к существующему прямоугольному зданию размером 11,30×10,24 м. Пристройка имеет размеры 13,3×3,1 м и 10,25×5,75 м, формируя компактную и функциональную планировочную структуру.
Конструктивная система
Для пристройки принята современная каркасная система с применением металлического каркаса и сэндвич-панелей. Это решение обусловлено несколькими факторами: необходимостью быстрого монтажа, высокими теплотехническими характеристиками и возможностью работы в зимних условиях.
Фундамент: бутово-ленточный, обеспечивающий надёжность в условиях сейсмичности 6 баллов.
Несущие конструкции: металлический каркас.
Наружные стены: сэндвич-панели с дополнительной обшивкой сайдингом для защиты от атмосферных воздействий.
Внутренние перегородки: гипсоволокнистые листы (ГВЛ).
Перекрытия: деревянное балочное с утеплением.
Кровля: многоскатная из металлочерепицы с организованным водостоком.
Планировочные решения
Реконструкция позволила организовать рациональную структуру помещений (итоговый состав):
- Продуктовый торговый зал.
- Хозяйственный торговый зал.
- Тёплый склад.
- Три холодных складских помещения.
- Санузел.
Демонтированы существующие ненесущие перегородки, что позволило создать новое зонирование с учётом современных требований к торговым предприятиям. Выход организован через существующий вход здания.
Архитектурный облик
Фасадные решения разработаны с учётом пожеланий заказчика. Здание приобрело современный облик благодаря применению сэндвич-панелей и сайдинга. Естественное освещение обеспечено через 2-камерные стеклопакеты ПВХ, установлены металлические двери. Над главным входом устроен двухскатный козырёк из металлочерепицы, защищающий от осадков и создающий архитектурный акцент.
Инженерные решения
- Система отопления: природный газ — оптимальное решение для региона с продолжительным отопительным периодом.
- Водоснабжение: централизованное.
- Канализация: выгребная яма (в условиях малого населённого пункта).
- Электроснабжение: скрытая проводка с соблюдением требований пожарной безопасности.
- Вентиляция: приточная система, обеспечивающая комфортные условия для посетителей и персонала.
- Водоотведение: ливневая канализация организована по покрытию и бетонным лоткам с отводом в сторону ул. Комсомольской.
- Энергоэффективность: для достижения класса энергоэффективности «В» в проекте предусмотрено применение эффективного утеплителя в ограждающих конструкциях и качественной гидроизоляции — критически важные решения для климатической зоны IВ с температурами до —30° C.
Технико-экономические показатели объекта после реконструкции
Площадь застройки — 228,65 м².
Общая площадь здания — 192,03 м² (увеличение на 87,93 м², +84%).
Строительный объём — 1017,45 м³.
Этажность — 1 этаж (без подвала).
Высота здания — 5,30 м.
Высота помещений — 2,58 м.
Класс энергетической эффективности — В.
Категория по пожарной опасности — Г.
Класс функциональной пожарной опасности — Ф3.1 (предприятие розничной торговли).
Уровень ответственности — нормальный.
Нормативные документы
При разработке проектной документации проектной компанией применялись следующие нормативные документы:
- Градостроительный кодекс Российской Федерации.
- Постановление Правительства РФ от 16.02.2008 № 87 «О составе разделов проектной документации и требованиях к их содержанию» (с изменениями на 27.05.2022).
- Федеральный закон от 30.12.2009 № 384-ФЗ «Технический регламент о безопасности зданий и сооружений».
- Федеральный закон от 22.07.2008 № 123-ФЗ «Технический регламент о требованиях пожарной безопасности» (с изменениями на 13.07.2015).
- СП 52.13330.2011 «Естественное и искусственное освещение».
- СП 118.13330.2022 «СНиП 31-06-2009 Общественные здания и сооружения» с Изменением № 1.
- СанПиН 2.2.1/2.1.1.1076-01 «Гигиенические требования к инсоляции и солнцезащите помещений жилых и общественных зданий».
- СНиП 3.02.01-87 (требования к производству земляных работ).






