Задачи и исходные данные
Задача: разработать проектную документацию строительства двухэтажного вспомогательного здания гаража с антресольным этажом, предназначенного для размещения и хранения служебного автотранспорта основного здания склада кокса, расположенного в г. Хабаровск, ул. Суворова, д. 73.
Условия строительства: климатический район IВ, расчётная температура наружного воздуха в зимний период — минус 31° C, средняя продолжительность отопительного периода (при температуре воздуха ниже +8° C) — 211 суток, расчётная снеговая нагрузка (II снеговой район) — 120 кг/м², скоростной напор ветра (III ветровой район) — 38 кг/м², сейсмичность площадки — 6 баллов, категория земель — земли населённых пунктов, общая площадь земельного участка — 1182 м², влажностный режим помещений — нормальный, уровень ответственности здания — II (нормальный), объект не относится к опасным производственным объектам, помещения с постоянным пребыванием людей отсутствуют.
Исходные данные: выписка из ЕГРН на земельный участок, выписка из ЕГРН на основное здание, технический паспорт объекта незавершённого строительства, градостроительный план земельного участка, задание заказчика.
Архитектурно-проектные решения
Разработали комплексное инженерное решение, учитывающее все особенности площадки и требования заказчика.
Конструктивная схема
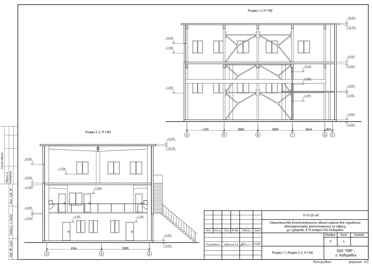
Выбрана каркасная система с металлическими колоннами, обеспечивающая сейсмостойкость при 6-балльных воздействиях и быстрый монтаж. Лёгкий металлокаркас снижает нагрузку на фундамент и позволяет использовать экономичные железобетонные плиты, что сокращает сроки и стоимость строительства. Пространственная жёсткость каркаса достигается за счёт системы связей, рассчитанной на климатические и сейсмические воздействия.
Ограждающие конструкции
Сэндвич-панели на вентилируемом фасаде — оптимальное решение для климата IВ. Термическое сопротивление превышает требования СП 50.13330.2012, что снижает теплопотери и эксплуатационные расходы на электроотопление. Вентилируемый зазор предотвращает образование конденсата и продлевает срок службы конструкций в условиях перепадов температур от —31° C до +30° C.
Планировочное и объёмно-пространственное решение
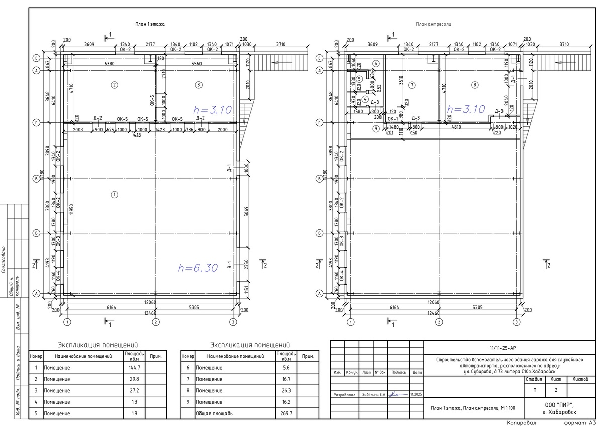
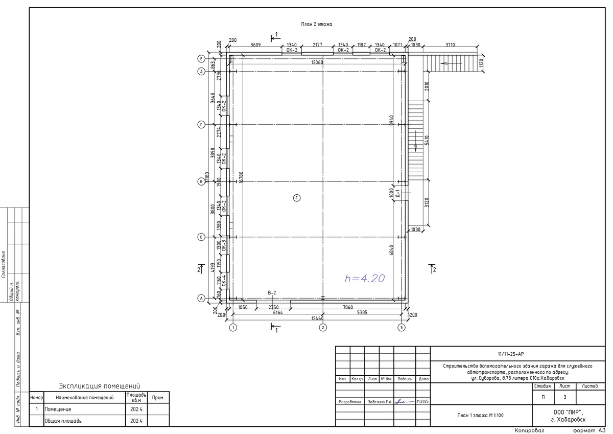
Организация антресольного этажа позволила увеличить полезную площадь здания до 472,1 м² при площади застройки всего 231,3 м² — прирост эффективности использования территории более чем в 2 раза. Антресоль размещена над частью первого этажа и соединена металлической лестницей, что не увеличивает этажность здания и снижает затраты на строительство. Первый этаж включает помещение гаража с двумя воротными проёмами размерами 3000×2350 мм и 2100×2350 мм, обеспечивающими удобный въезд различных типов служебного автотранспорта. Второй этаж предназначен для размещения дополнительных технических помещений.
Фасадные решения
Цветовая гамма фасадов сформирована сочетанием колеров RAL 9002 (серо-белый) для основных плоскостей стен, RAL 7024 (графитовый серый) и RAL 7040 (серое стекло) для конструктивных элементов и металлических деталей. Оконные блоки выполнены из ПВХ-профиля белого цвета RAL 9061 с заполнением двухкамерными стеклопакетами класса В1. Архитектурный облик здания соответствует функциональному назначению промышленно-складского объекта.
Кровля и водоотвод
Плоская конструкция с покрытием из профилированного стального листа по ГОСТ 24045-2016 колера RAL 7040 (серое стекло). Организован наружный водосток для отвода атмосферных осадков. Конструкция кровли рассчитана на снеговую нагрузку 120 кг/м² и гарантирует требуемую несущую способность с учётом коэффициента надёжности.
Заполнение проёмов
Оконные блоки с двухкамерными стеклопакетами класса В1 соответствуют требованиям СП 50.13330.2012 для климатического района IВ и обеспечивают энергоэффективность здания. Входные стальные двери по ГОСТ 31173-2016 предусматривают необходимую тепло- и взломозащиту.
Конструктивные решения фундаментов и перекрытий
Фундамент выполнен из железобетонных плит, обеспечивающих равномерную передачу нагрузок на грунтовое основание. Перекрытия — металлокаркасные с профилированным настилом, что гарантирует необходимую несущую способность и жёсткость дисков перекрытий. Полы первого этажа — бетонные, рассчитанные на нагрузки от автотранспорта.
Описание объекта (характеристики)
Функциональное назначение — вспомогательное здание гаража для служебного автотранспорта (код по классификатору Г04.01.002.001).
Этажность — 2 этажа с антресольным уровнем.
Площадь застройки — 231,3 м².
Общая площадь здания — 472,1 м².
Строительный объём — 2322,5 м³ (надземный).
Высота здания — 10,9 м.
Высота помещений — 3,10 м / 4,20 м / 6,30 м.
Фундамент — железобетонные плиты.
Каркас — металлические колонны.
Стены — сэндвич-панели на металлическом каркасе (вентилируемый фасад).
Перекрытия — металлокаркасные с профилированным настилом.
Кровля — плоская, покрытие из профилированного стального листа по ГОСТ 24045-2016.
Полы — бетонные.
Лестницы и ограждения — металлические.
Окна — ПВХ-профиль с двухкамерными стеклопакетами по ГОСТ 30674-99, класс В1.
Двери — стальные блоки по ГОСТ 31173-2016.
Ворота — секционные DoorHan RSD02 из сэндвич-панелей.
Отопление — электрическое.
Водосток — наружный организованный.
Нормативные документы выполненных проектных работ
При проектировании соблюдены нормы СНиП по противопожарной безопасности и эксплуатации объекта и требования санитарно-эпидемиологической службы.
Проектная документация выполнена проектной компанией «Проектно-изыскательские работы» в соответствии с действующими нормами и правилами и предусматривает мероприятия, обеспечивающие пожарную безопасность эксплуатации здания, при соблюдении их заказчиком и подрядчиком.
Раздел «Объёмно-планировочные и архитектурные решения» разработан на основании требований Градостроительного кодекса Российской Федерации. Содержание раздела соответствует постановлению Правительства Российской Федерации от 16 февраля 2008 года № 87 «О составе разделов проектной документации и требованиях к их содержанию» (с изменениями на 27 мая 2022 года) (редакция, действующая с 1 сентября 2022 года).
Проектные решения приняты в соответствии с действующими нормативными документами:
- СНиП 2.01.07-85* «Нагрузки и воздействия» (климатические нагрузки, снеговые и ветровые воздействия).
- СП 50.13330.2012 с изменением 1 «Тепловая защита зданий» (требования к термическому сопротивлению ограждающих конструкций).
- СНиП 3.02.01-87 «Земляные сооружения, основания и фундаменты» (производство земляных работ, отвод поверхностных и подземных вод).
- ГОСТ 30674-99 «Блоки оконные из поливинилхлоридных профилей» (технические требования к оконным конструкциям)
- ГОСТ 31173-2016 «Блоки дверные стальные» (требования к входным стальным дверям).
- ГОСТ 24045-2016 «Профили стальные листовые гнутые с трапециевидными гофрами для строительства. Технические условия» (кровельное покрытие).
- Приказ Минстроя России от 2 ноября 2022 г. № 928/пр «Об утверждении классификатора объектов капитального строительства по их назначению и функционально-технологическим особенностям».
- Градостроительный план земельного участка.




