Задачи и исходные данные
Задача: разработка проектной документации перепланировки и переустройства нежилого функционального помещения, расположенного в Центральном районе города Хабаровска по ул. Ленина, д. 62, в том числе для последующего согласования в установленном порядке.
Исходные данные: объект расположен в климатическом районе IВ с расчётной зимней температурой наружного воздуха —31° C, снеговой нагрузкой 120 кг/м², скоростным напором ветра 38 кг/м² и сейсмичностью 6 баллов; средняя продолжительность отопительного периода составляет 211 суток.
Объект перепланировки
Объект — нежилое помещение в составе многоквартирного дома, являющегося объектом культурного наследия.
Год постройки МКД — 1954.
Этаж/этажность — 1/3.
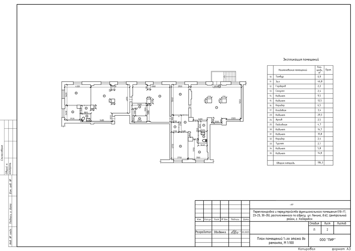
Общая площадь помещения до перепланировки — 196,3 м².
Состав помещений — тамбур, зал, гардероб, санузел, 7 кабинетов, 2 коридора, кладовая, архив, подсобка, туалет.
Высота помещений — 3 м.
Наружные стены — кирпичные.
Перегородки — кирпичные, ГВЛ.
Перекрытие — деревянное балочное оштукатуренное.
Архитектурно-планировочное решение
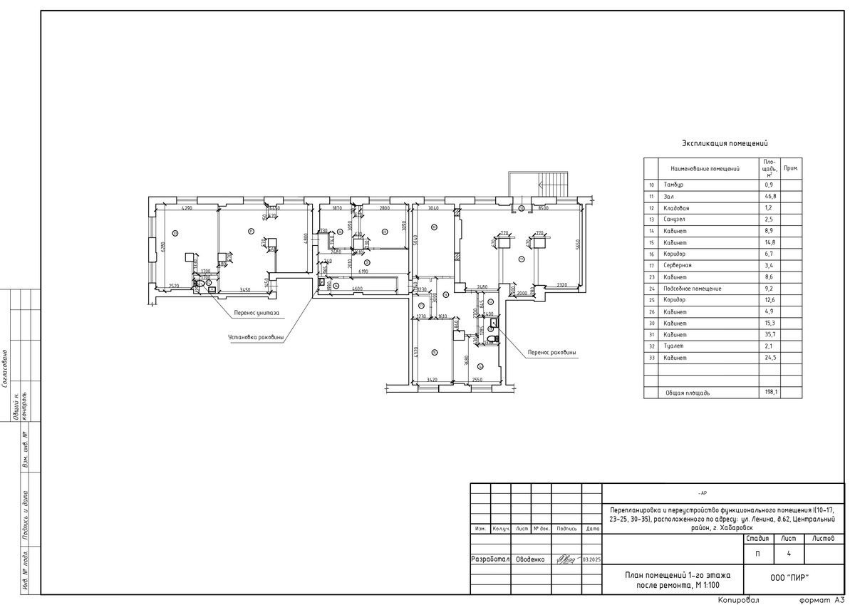
Проект разработан по заданию и с учётом пожеланий заказчиков. Проектная документация включает планы помещений до и после ремонта, план-схему перепланировки, схемы инженерных сетей водоснабжения и канализации, конструкции полов, монтаж перегородок ГВЛ, схемы зашивки и технические указания.
Проектное предложение предусматривает:
— демонтаж перегородок из кирпича;
— устройство дверного проёма и установку дверного блока;
— зашивку оконных и дверных проёмов;
— устройство перегородок из стекла;
— переустройство (перенос раковины и унитаза, установка раковины).
Перепланировка выполнена в рамках существующего объёма, без усложнения структуры, с акцентом на практическое использование и долгосрочную эксплуатацию:
- исключены избыточные помещения (гардероб, архив), площадь перераспределена в пользу рабочих зон;
- выделена отдельная серверная для размещения IT-оборудования и инженерных систем;
- сохранено 7 кабинетов с более сбалансированными площадями и универсальной планировкой;
- оптимизирована внутренняя логистика за счёт корректировки коридоров и перегородок;
- улучшена санитарно-бытовая схема с переносом и уточнением сантехнических точек;
- повышена гибкость эксплуатации помещений без изменения общей площади и конструктивной схемы.
Работы по перепланировке и переустройству не затрагивают общедомовое имущество и несущие конструкции МКД. Не нарушается и не изменяется архитектурно исторический облик здания.
Все сантехнические приборы подключаются к существующим стоякам ХВС, ГВС и канализации. Сточные воды отводятся в домовую канализацию, стояки не изменяются. Система вентиляции — от вентиляционных шахт здания. Существующая система не изменяется и не затрагивается. Отопление — от существующих стояков, система не изменяется. Освещение — от существующих окон.
Монтаж сантехнических приборов и их подключение проводятся с учётом общих требований и рекомендаций, указанных в СП 73.13330.2016 «Внутренние санитарно-технические системы» и СП 30.13330.2020 «Внутренний водопровод и канализация здания». В помещениях ванной, туалета и кухни предусмотрена гидроизоляция плит перекрытия с заходом на стены всю высоту замачивания.
Технико-экономические показатели помещения после перепланировки и переустройства
Общая площадь функционального помещения после проведения перепланировки — 198,1 м². Состав помещений после ремонта: тамбур, зал, санузел, 7 кабинетов, 2 коридора, кладовая, серверная, подсобное помещение, туалет.
Нормативные документы выполненных проектных работ
Проект перепланировки и переустройства нежилого помещения по адресу: г. Хабаровск, ул. Ленина, д. 62 выполнен проектной компанией «ПИР» в соответствии с действующими нормами и правилами и предусматривает мероприятия, обеспечивающие пожарную безопасность эксплуатации здания, при соблюдении их заказчиком и подрядчиком.
При проведении проектных работ соблюдены нормы СНиП по противопожарной безопасности эксплуатации объекта и требования санитарно-эпидемиологической службы.
Проектные решения приняты в соответствии с действующими нормативными документами:
- СанПиН 2.1.3684-21 «Санитарно-эпидемиологические требования к содержанию территорий городских и сельских поселений, к водным объектам, питьевой воде и питьевому водоснабжению, атмосферному воздуху, почвам, жилым помещениям, эксплуатации производственных, общественных помещений, организации и проведению санитарно-противоэпидемических (профилактических) мероприятий».
- СП 54.13330.2022 «Здания жилые многоквартирные».
- Федеральный закон № 123-ФЗ «Технический регламент о требованиях пожарной безопасности».


