Задачи, исходные данные и выполненные работы
Задача: разработка проектной документации перепланировки и переустройства 1-комнатной квартиры в Краснофлотском районе города Хабаровска.
Исходные данные: квартира общей площадью 46,6 м² расположена на 13 этаже монолитного жилого дома 2024 года постройки.
Выполненные работы: разработка архитектурно-планировочного решения, подготовка проектной документации для согласования перепланировки, в установленном законом порядке.
Объект перепланировки
Объект — жилое помещение (квартира) в составе многоквартирного дома (МКД).
Год постройки МКД — 2024.
Количество жилых комнат — 1.
Этаж/этажность — 13/21.
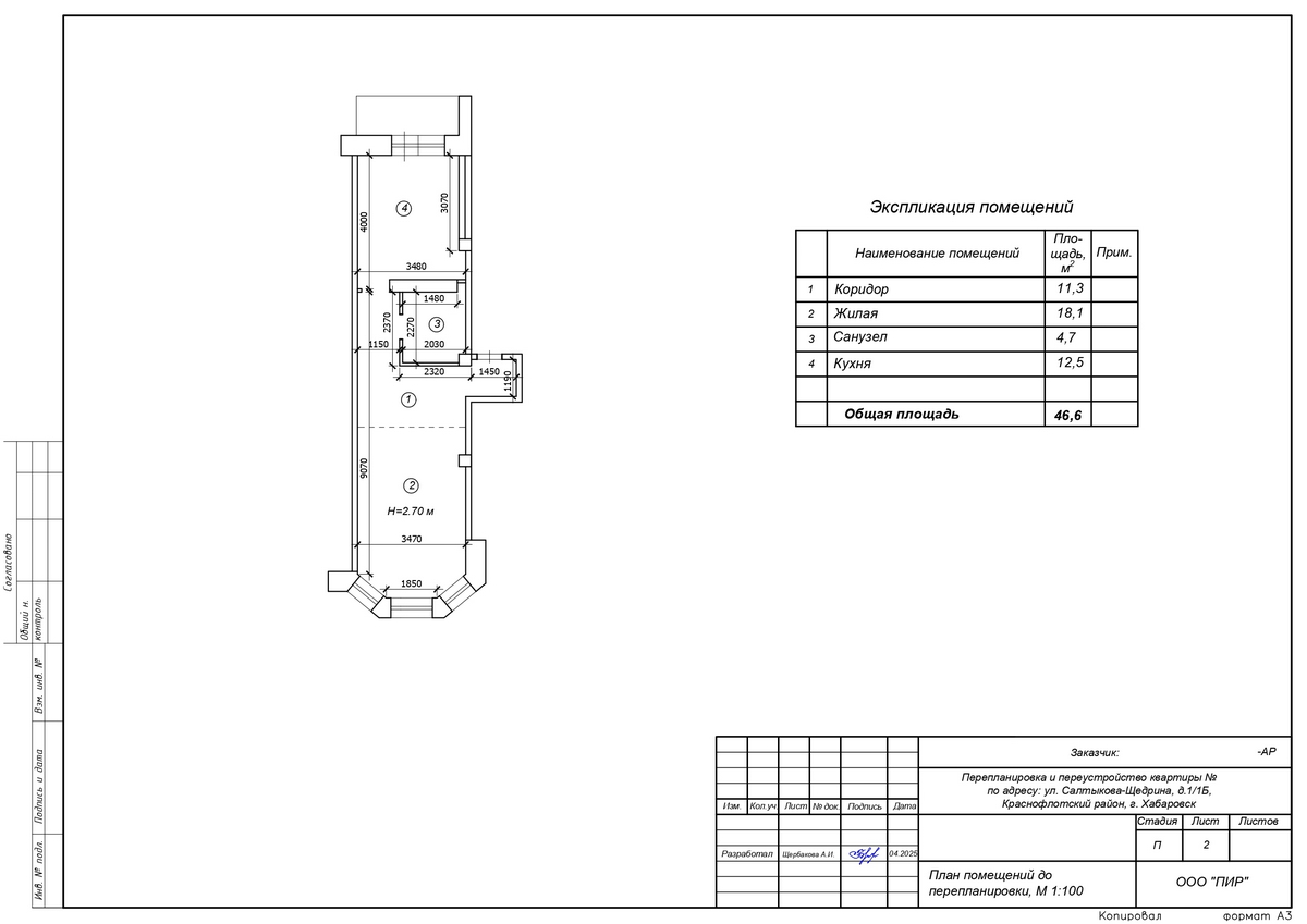
Общая площадь квартиры до перепланировки — 46,6 м².
Жилая площадь квартиры до перепланировки — 18,1 м².
Состав помещений — коридор, жилая, санузел, кухня.
Высота помещений — 2,70 м.
Наружные стены — монолитные ж/б.
Перегородки — монолитные ж/б, бетонный камень пустотелый.
Перекрытия — монолитные ж/б плиты.
Архитектурно-планировочное решение
Проект разработан по решению и с учётом пожеланий заказчика.
Проектное предложение предусматривает:
— демонтаж внутренних ненесущих перегородок;
— возведение новых перегородок из ГВЛ;
— устройство дверных проёмов и установку дверных блоков;
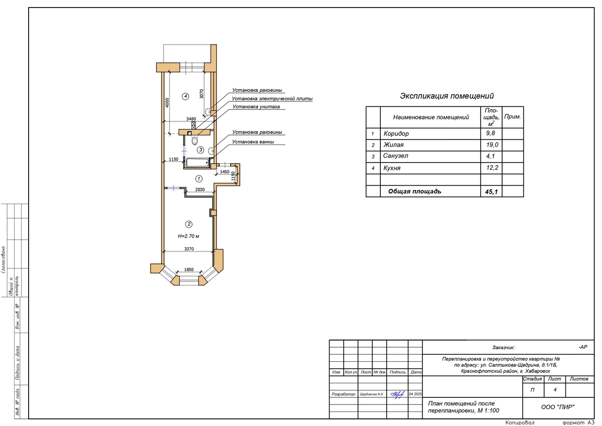
— устройство наливных полов с гидроизоляцией в помещениях санузла и кухни;
— переустройство (установка ванны, унитаза и раковины в помещении санузла, установка раковины и электрической плиты в помещении кухни).
Перепланировка и переустройство помещения выполняется без нарушения несущих конструкций элементов здания и не оказывает влияние на их устойчивость.
Согласно письму № 807 от 03.07.2025 г., подготовленному Фондом Хабаровского края по защите прав участников долевого строительства и рабочей документации от ООО «ДВПИ», внутриквартирные перегородки из отсевоблоков толщиной 90 мм являются ненесущими.
Монтаж перегородки в санузле не препятствует доступу к запорной арматуре ХВС и ГВС.
Работы по перепланировке и переустройству квартиры должны производиться силами лицензированных организаций, имеющих соответствующие допуски.
Электрическая плита подключается к отводу кабеля для электрической плиты в месте, предусмотренном застройщиком. Работы выполняются специалистами, имеющими соответствующие допуски.
Все сантехнические приборы подключаются к существующим стоякам ХВС, ГВС и канализации. Сточные воды отводятся в домовую канализацию, стояки не изменяются. Отопление — от существующих стояков, система не изменяется. Освещение — от существующих окон.
Монтаж сантехнических приборов и их подключение необходимо проводить с учётом общих требований и рекомендаций, указанных в СП 73.13330.2016 «Внутренние санитарно-технические системы» и СП 30.13330.2020 «Внутренний водопровод и канализация здания». В помещениях санузла и кухни предусмотрена гидроизоляция плит перекрытия с заходом на стены всю высоту замачивания.
Акты на скрытые работы:
— Акт на монтаж скрытой электропроводки.
— Акт на монтаж перегородок из ГВЛ.
— Акт на гидроизоляцию полов.
Технико-экономические показатели жилого помещения после перепланировки и переустройства
Общая площадь квартиры после проведения перепланировки — 45,1 м², жилая – 19 м². Состав помещений: коридор, жилая, санузел, кухня.
Нормативные документы выполненных проектных работ
Проект перепланировки и переустройства квартиры по адресу: г. Хабаровск, ул. Салтыкова-Щедрина, д. 1/1Б выполнен проектной компанией «ПИР» в соответствии с действующими нормами и правилами и предусматривает мероприятия, обеспечивающие пожарную безопасность эксплуатации здания, при соблюдении их заказчиком и подрядчиком.
При проектировании соблюдены нормы СНиП по противопожарной безопасности эксплуатации объекта и требования санитарно-эпидемиологической службы.
Проектные решения приняты в соответствии с действующими нормативными документами:
- СанПиН 2.1.3684-21 «Санитарно-эпидемиологические требования к содержанию территорий городских и сельских поселений, к водным объектам, питьевой воде и питьевому водоснабжению, атмосферному воздуху, почвам, жилым помещениям, эксплуатации производственных, общественных помещений, организации и проведению санитарно-противоэпидемических (профилактических) мероприятий».
- СП 54.13330.2022 «Здания жилые многоквартирные».
- Федеральный закон № 123-ФЗ «Технический регламент о требованиях пожарной безопасности».


