Задачи и исходные данные
Задача: разработка проектной документации перепланировки и переустройства нежилых помещений цокольного этажа по ул. Луговая, д. 56, г. Владивосток.
Исходные данные: объект расположен в климатическом районе II; расчётная температура наружного воздуха в зимний период —24° C, расчётная снеговая нагрузка — 100 кг/м², скоростной напор ветра — 48 кг/м², сейсмичность — 6 баллов; средняя продолжительность отопительного периода составляет 196 суток. Влажностной режим — нормальный, здание — отапливаемое. За относительную отметку 0.000 принята отметка пола.
Объект перепланировки
Объект перепланировки — нежилые помещения цокольного этажа многоквартирного жилого дома.
Год постройки здания — 1970.
Этаж/этажность — цокольный этаж / 5 этажей.
Конструктивные решения цокольного этажа: стены — кирпичные и панельные; перегородки — кирпичные, гипсолитовые, из гипсокартона; перекрытия — железобетонные.
Дверные проёмы — с установкой деревянных и металлических дверных блоков.
Общая площадь помещений цокольного этажа до перепланировки — 516,5 м².
Состав помещений до перепланировки — нежилые помещения, санузлы, коридоры.
Объёмно-планировочные и архитектурные решения
Проект перепланировки разработан по заданию заказчика. Проектная документация включает план помещений цокольного этажа до перепланировки, план-схему перепланировки и план помещений после перепланировки, конструкции полов, схемы сетей холодного и горячего водоснабжения, схемы сети канализации, схемы устройства перегородок из ГВЛ и кирпича, а также технические указания.
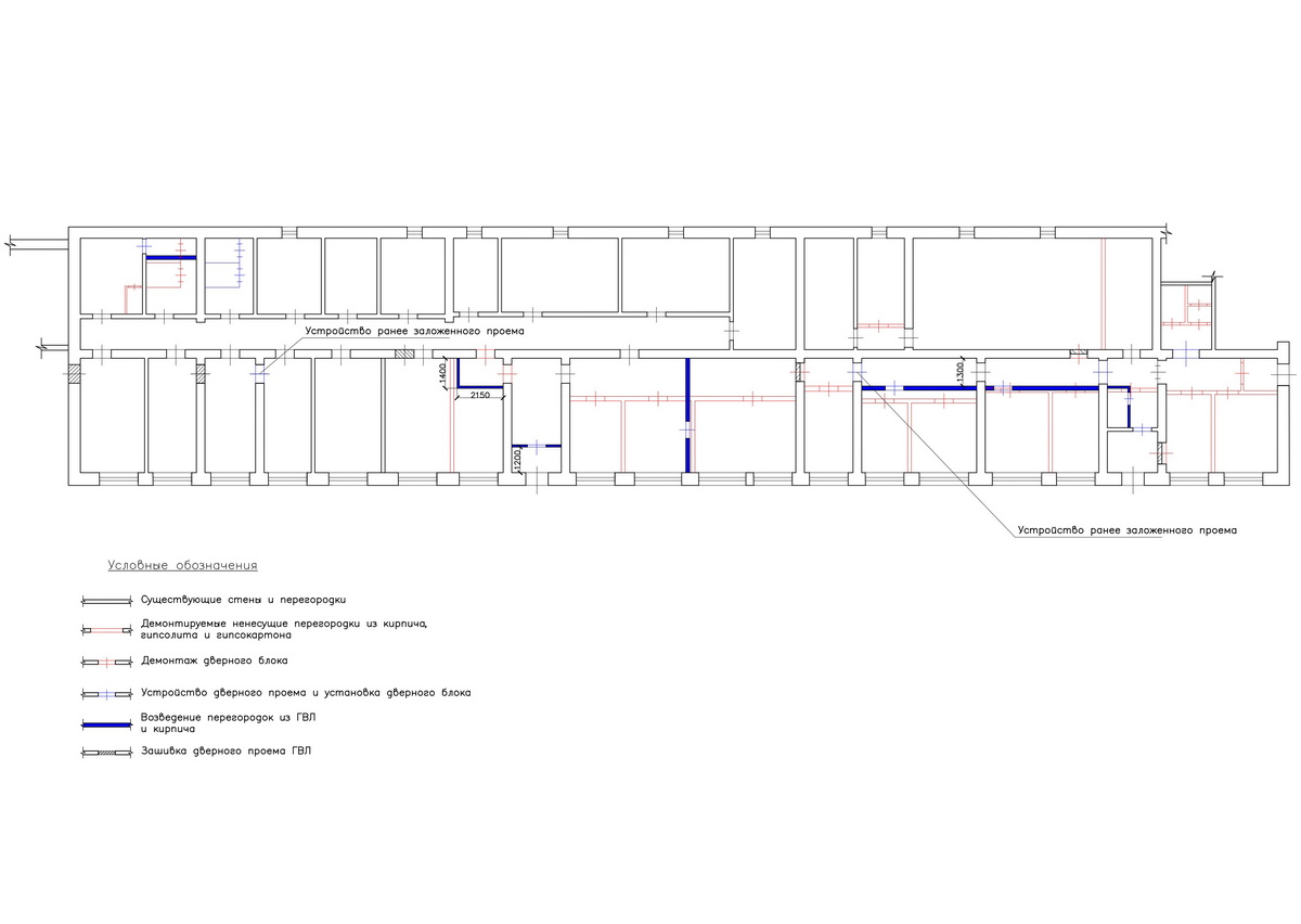
Проектное предложение предусматривает:
— демонтаж внутренних ненесущих перегородок из кирпича, гипсолита и гипсокартона;
— демонтаж дверных блоков;
— устройство ранее заложенных дверных проёмов;
— устройство дверных проёмов и установку дверных блоков в возводимых перегородках;
— возведение перегородок из ГВЛ и кирпича;
— зашивку дверных проёмов листами ГВЛ;
— монтаж гидроизоляции полов в помещениях санузлов;
— переустройство (установка раковин и унитазов в помещениях санузлов).
Перепланировка и переустройство выполняются в существующем объёме здания, без изменения несущих конструкций и без влияния на устойчивость и пространственную жёсткость здания.
Холодное водоснабжение предусмотрено от существующих систем жилого дома. Существующие стояки холодного и горячего водоснабжения, а также канализации не изменяются и не затрагиваются. Сточные воды от санитарных приборов отводятся в домовую сеть канализации. Система отопления выполняется от существующих стояков жилого дома и не изменяется. Естественное освещение помещений осуществляется от существующих окон.
Монтаж сантехнических приборов и их подключение выполняются в соответствии с требованиями СП 73.13330.2016 «Внутренние санитарно-технические системы» и СП 30.13330.2020 «Внутренний водопровод и канализация здания». Все применяемые материалы должны иметь сертификаты пожарной безопасности. Эвакуационные пути и выходы не изменяются и не затрагиваются.
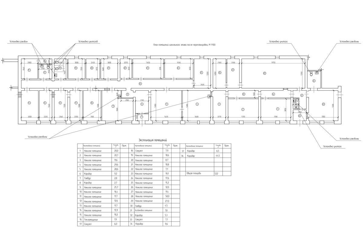
Технико-экономические показатели помещений после перепланировки и переустройства
Общая площадь помещений цокольного этажа после перепланировки — 522 м².
Состав помещений после перепланировки — нежилые помещения, санузлы, коридоры, тамбуры, техническое помещение, хозяйственно-бытовое помещение.
Нормативные документы выполненных проектных работ
Проектная документация «Перепланировка и переустройство нежилых помещений цокольного этажа по адресу: ул. Луговая, д. 56, Владивостокский городской округ, г. Владивосток» выполнена проектной компанией «ПИР» в соответствии с действующими нормами и правилами и предусматривает мероприятия, обеспечивающие пожарную безопасность эксплуатации здания, при соблюдении их заказчиком и подрядчиком. При проведении проектных работ соблюдены требования санитарно-эпидемиологической службы.
Проектные решения приняты в соответствии с действующими нормативными документами:
- Градостроительный кодекс Российской Федерации.
- Постановление Правительства Российской Федерации от 16.02.2008 №87 «О составе разделов проектной документации и требованиях к их содержанию» (с изменениями, действующая редакция).
- Федеральный закон от 30.12.2009 №384-ФЗ «Технический регламент о безопасности зданий и сооружений».
- СП 52.13330.2016 «Естественное и искусственное освещение».
- СП 54.13330.2022 «Здания жилые многоквартирные».
- СанПиН 2.1.3684-21 «Санитарно-эпидемиологические требования к содержанию территорий городских и сельских поселений, к водным объектам, питьевой воде и питьевому водоснабжению, атмосферному воздуху, почвам, жилым помещениям, эксплуатации производственных, общественных помещений, организации и проведению санитарно-противоэпидемических (профилактических) мероприятий».


