Задачи, исходные данные и выполненные работы
Задача: разработать рабочую документацию по разделу ЭМ для обеспечения надёжного электроснабжения центрального теплового пункта (ЦТП) в составе модернизации системы теплоснабжения предприятия. Основная цель — безопасное и устойчивое питание силового и автоматизированного оборудования, соответствующее действующим нормам электробезопасности, промышленной и пожарной безопасности.
Исходные данные: техническое задание на проектирование, согласованное с заказчиком. Категория надёжности электроснабжения — III; питающая сеть — трёхфазная, пятипроводная, 380/220 В, 50 Гц, с глухозаземлённой нейтралью; система электробезопасности — TN-C-S.
Выполненные работы: расчёт электрических нагрузок и подбор оборудования, разработка схем электроснабжения, заземления и системы уравнивания потенциалов, подготовка планов подключения электрооборудования (М 1:100), составление ведомостей объёмов работ, спецификаций и кабельного журнала, разработка конструктивных решений для установки шкафов управления и прокладки кабельных трасс, внутренний контроль проектных решений и подтверждение их соответствия действующим нормативным требованиям.
Выполненные работы
- Установлен распределительный щит ЩР-ЦТП и шкафы управления насосами W-CTRL-SK-712.
- Спроектированы линии питания электроприёмников, включая насосные агрегаты, шкафы автоматики ШУ ЦТП и ШУН, регулирующие клапаны и тепловычислитель.
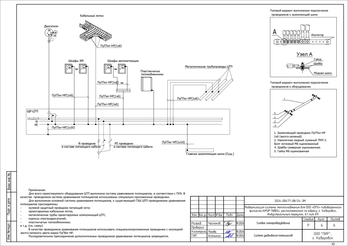
- Разработаны монтажные конструкции и трассы прокладки кабелей по существующим и проектируемым лоткам.
- Реализована система защитного заземления и автоматического отключения питания при аварийных режимах.
Описание работ
- В помещении ЦТП предусмотрено централизованное питание всех электроприёмников от распределительного щита ЩР-ЦТП.
- Силовые линии выполнены кабелями с медными жилами ВВГнг(А)-LS, проложенными по перфорированным кабельным лоткам и в гофрированных ПВХ-трубах.
- Монтаж шкафов управления выполнен на сборных металлических конструкциях из П-образного профиля, закреплённых анкерными болтами к основанию и шпильками М6 к балкам.
- Переход кабельных трасс на существующие лотки осуществлён вертикальными участками с усилением стойками из монтажного профиля.
- Шаг подвеса кабельных лотков принят 1000 мм, что обеспечивает надёжность и удобство обслуживания.
Преимущества решений
- Безопасность эксплуатации: реализованы мероприятия по защитному заземлению, автоматическому отключению питания и системе уравнивания потенциалов в соответствии с ПУЭ (7-е изд.) и СП 76.13330.2016.
- Надёжность электроснабжения: оборудование подобрано по допустимым длительным токовым нагрузкам с проверкой падения напряжения и срабатывания защит.
- Технологичность монтажа: использование унифицированных конструкций и готовых кабельных трасс позволило минимизировать вмешательство в действующие системы ЦТП и сократить время внедрения.
- Соответствие отраслевым требованиям: применены сертифицированные материалы, удовлетворяющие требованиям пожарной безопасности и экологическим нормам для пищевого производства.
Нормативные документы выполненных проектных работ
Рабочая документация разработана проектной организацией «ПИР» в соответствии с градостроительным планом земельного участка, заданием на проектирование, техническими регламентами, в том числе устанавливающими требования по обеспечению безопасной эксплуатации зданий, строений, сооружению и безопасного использования прилегающих к ним территории, требованиями Федерального закона от 30.12.2009 № 384-Ф3 «Технический регламент безопасности зданий и сооружений», и соблюдением технических условий.
- ПУЭ, 7-е издание — Правила устройства электроустановок.
- СП 76.13330.2016 — Электротехнические устройства.
- СП 31-110-2003 — Проектирование и монтаж электроустановок жилых и общественных зданий.
- ГОСТ 50571 — Электроустановки зданий.
- ГОСТ 21.608-84, ГОСТ 21.614-88 — Условные графические обозначения и схемы электрические.
- СО-153-34.21.122-2003 — Инструкция по устройству молниезащиты зданий и сооружений.
- А5-92-13 — Прокладка кабелей напряжением до 35 кВ в траншеях.


