Задачи и исходные данные
Задача: разработка проектной документации (раздел «Объёмно-планировочные и архитектурные решения») для строительства одноэтажного здания магазина в Железнодорожном районе Хабаровска.
Исходные данные: выписка из ЕГРН, градостроительный план земельного участка, отчёты об инженерно-геодезических и инженерно-геологических изысканиях, решение о согласовании архитектурно-градостроительного облика, ТУ (на электроснабжение, холодное водоснабжение и водоотведение), а также письмо Управления дорог и внешнего благоустройства о согласии на примыкание к дороге.
Объёмно-пространственные и архитектурно-художественные решения
Проектом предусмотрено строительство одноэтажного здания магазина прямоугольной формы размером 18×15 м, без подвала и чердака. Проектирование здания выполнено с учётом функционального назначения объекта, требований пожарной безопасности, энергоэффективности и градостроительных ограничений, установленных для участка.
Основные показатели
Назначение и тип здания — одноэтажное здание без подвала.
Этажность — 1 этаж, подземных этажей нет.
Строительный объём — 1107,0 м³ (надземный — 1107,0 м³, подземный — 0 м³).
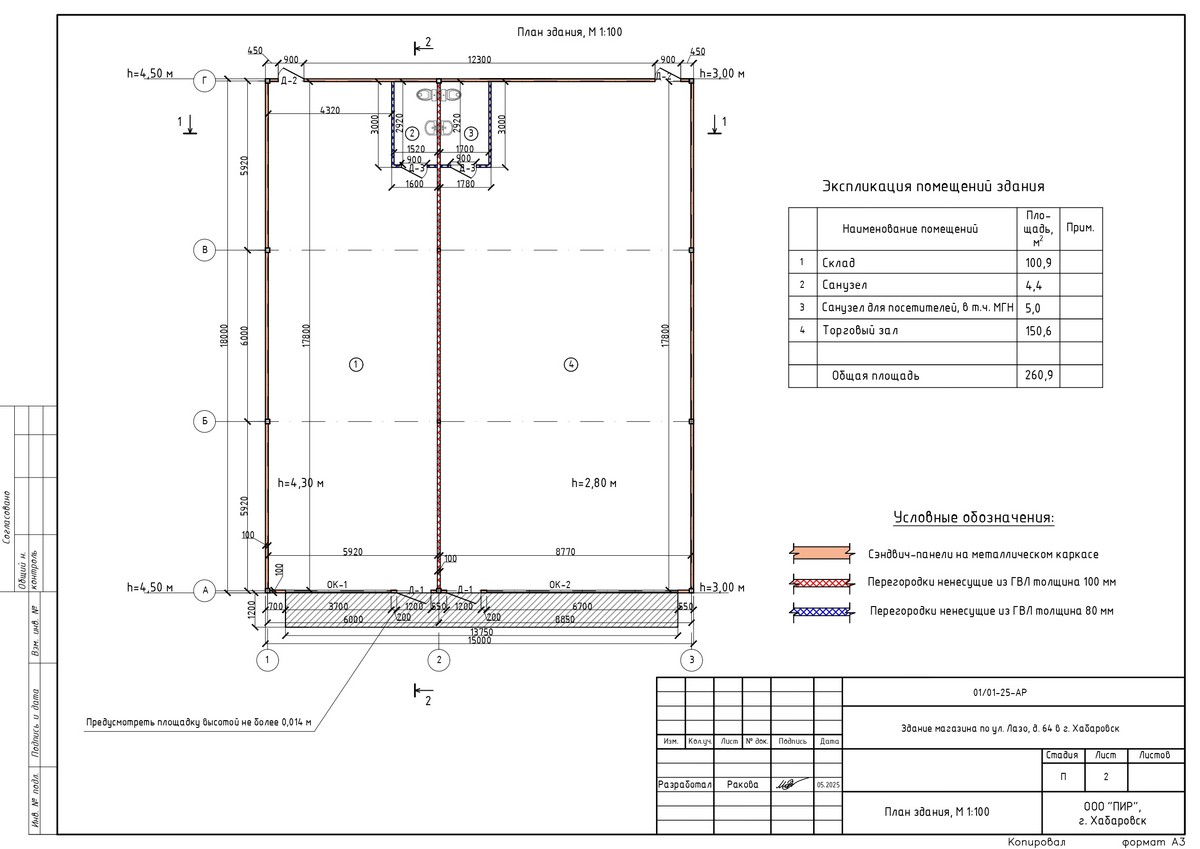
Площадь застройки — 270,0 м².
Общая площадь здания — 260,9 м².
Количество помещений — 4 (все — нежилые).
Вместимость — 7 человек.
Каркас — металлический.
Фундамент — монолитная железобетонная плита.
Перекрытие — металлические фермы.
Наружные стены — сэндвич-панели с утеплителем 100 мм.
Объёмно-пространственная схема
Здание представляет собой единый компактный объём с надземным строительным объёмом 1107 м³, высотой 3,0/4,5 м. Конструктивная схема основана на металлическом каркасе, обеспечивающем требуемую несущую способность и возможность свободной внутренней планировки без устройства капитальных стен.
Для внутреннего зонирования применены ненесущие перегородки из ГВЛ толщиной 80–100 мм. Такая конфигурация обеспечивает функциональную разделённость торгового зала, складской зоны и санитарных помещений, сохраняет гибкость планировочных решений и соответствует нормативам для зданий торговли.
Архитектурно-художественное решение
Архитектурный образ здания сформирован на основе принципов рациональности и технологичности. Основным материалом наружных стен выбраны сэндвич-панели с утеплителем 100 мм, позволяющие обеспечить нормативную теплотехническую эффективность и лаконичный внешний вид.
Окна выполнены из ПВХ-профиля, что обеспечивает стабильные характеристики теплопередачи и долговечность. Композиция фасадов выдержана в спокойной плоскостной структуре без декоративных элементов, что соответствует функциональной типологии магазина и требованиям согласованного архитектурно-градостроительного облика.
Решения по кровле
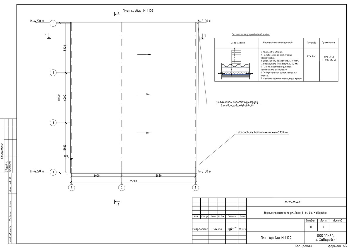
Кровля — односкатная, с покрытием из профлиста Н57-750 и организованным водостоком. В её составе предусмотрены слои пароизоляции, два слоя утеплителя (100 мм + 50 мм), гидроизоляция и металлические несущие фермы. Площадь кровли — 274 м².
Односкатная схема выбрана как оптимальная с точки зрения эксплуатации в климатическом районе: она исключает образование застойных зон и обеспечивает надёжный водоотвод. Цвет покрытия согласуется с общей архитектурной концепцией.
Функционально-эстетические обоснования
Принятые архитектурные решения обеспечивают:
- соответствие градостроительным ограничениям (ЗОУИТ), включая высотные регламенты;
- устойчивость к климатическим воздействиям района строительства (—31° C, снеговая нагрузка — 120 кг/м²);
- энергоэффективность класса В;
- визуальную нейтральность здания, позволяющую интегрировать его в окружение без акцентов и контрастных элементов;
- обеспечение естественной вентиляции через фасадные вентиляционные решётки и возможность установки инженерного оборудования на фасадах в декоративных коробах.
Нормативные документы выполненных проектных работ
При проектировании соблюдены нормы СНиП по противопожарной безопасности и эксплуатации объекта и требования санитарно-эпидемиологической службы.
Проектная документация выполнена проектной компанией «Проектно-изыскательские работы» в соответствии с действующими нормами и правилами и предусматривает мероприятия, обеспечивающие пожарную безопасность эксплуатации здания, при соблюдении их заказчиком и подрядчиком.
Раздел «Объёмно-планировочные и архитектурные решения» разработан на основании требований Градостроительного кодекса Российской Федерации. Содержание раздела соответствует постановлению Правительства Российской Федерации от 16 февраля 2008 года № 87 «О составе разделов проектной документации и требованиях к их содержанию» (с изменениями на 27 мая 2022 года) (редакция, действующая с 1 сентября 2022 года).
Проектные решения приняты в соответствии с действующими нормативными документами:
- Технический регламент о требованиях пожарной безопасности (с изменениями на 25 декабря 2023 г.).
- СП 118.13330.2022 «СНиП 31-06-2009 Общественные здания и сооружения» с изменениями.
- Градостроительный регламент земельного участка и требования документов по использованию территории, включая согласование архитектурно-градостроительного облика.
- Требования санитарно-эпидемиологической службы, применимые к непроизводственным объектам данного назначения.




