Задачи и исходные данные
Задача: разработка проектной документации (раздел «Объёмно-планировочные и архитектурные решения») для строительства одноэтажного здания склада на земельном участке, расположенном в Хабаровском районе, село Ракитное.
Исходные данные: климатический район строительства — IВ, расчётная температура наружного воздуха в зимний период — минус 31° C, расчётная снеговая нагрузка (II район СП 20.13330.2016) — 120 кг/м², скоростной напор ветра (III район СП 20.13330.2016) — 38 кг/м², сейсмичность — 6 баллов.
Объёмно-планировочные и архитектурные решения
Проект разработан по заданию заказчика в соответствии с требованиями Градостроительного кодекса Российской Федерации и постановления Правительства РФ от 16 февраля 2008 года № 87 «О составе разделов проектной документации и требованиях к их содержанию».
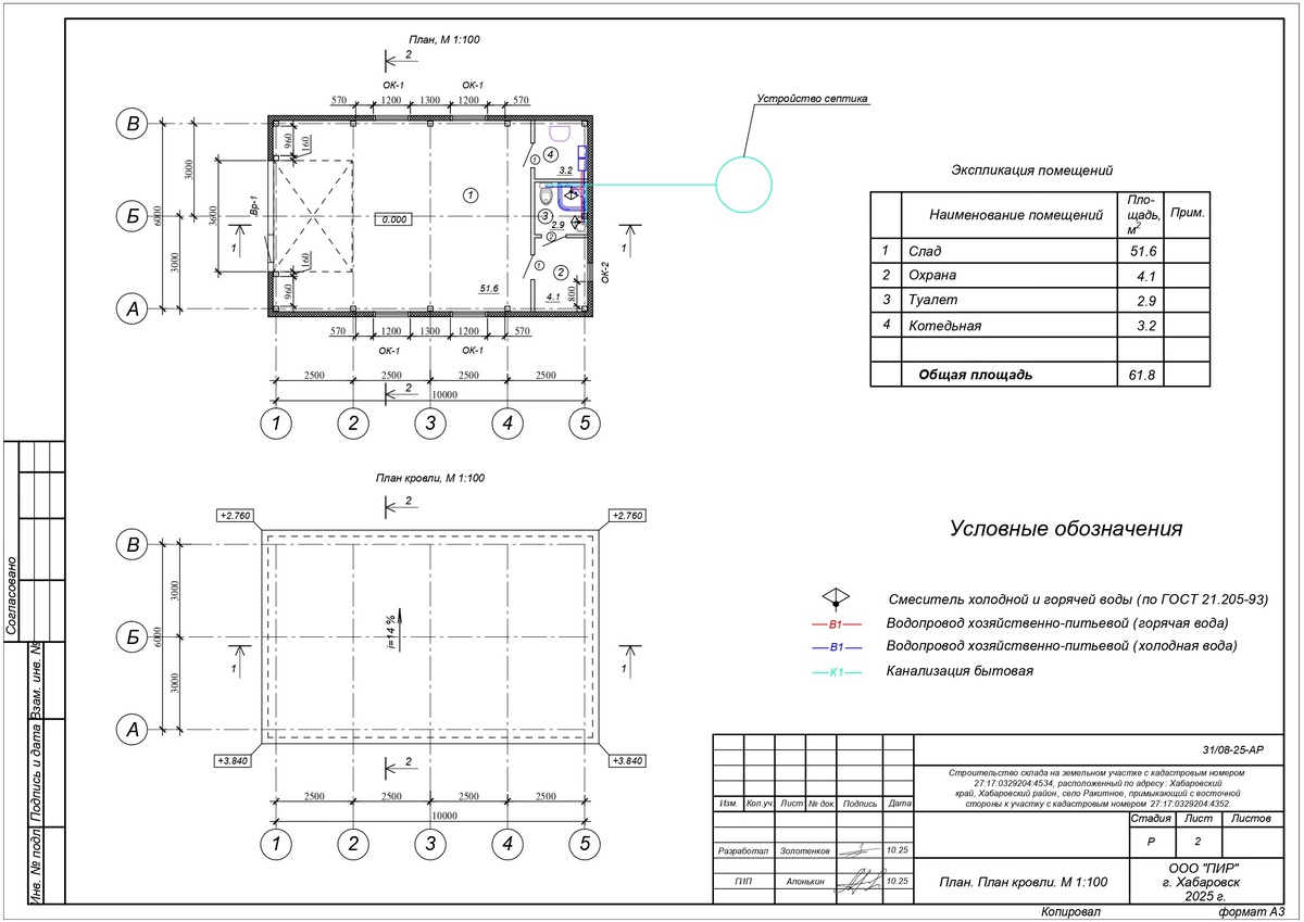
Проектом предусмотрено строительство одноэтажного здания склада прямоугольной формы с размерами в плане 10×6 м.
Конструктивная основа здания — несущий металлический каркас (балки по ГОСТ 57837-2017, стойки, фахверк, диафрагмы жёсткости по ГОСТ 30245-2003). Скатная кровля — из трёхслойных кровельных панелей по ГОСТ 32603-2021 по металлическим прогонам по ГОСТ 8240-97. Высота помещений определена конструкцией скатной кровли и составляет от 2,7 до 3,8 м.
Наружные стены выполнены из трёхслойных стеновых панелей по ГОСТ 32603-2021 по стальному несущему каркасу. Фундамент — монолитная железобетонная плита по железобетонным сваям.
Технико-экономические показатели
Общая площадь здания — 61,8 м².
Строительный объём (надземная часть) — 233,5 м³.
Этажность — 1 надземный этаж, подземных этажей нет.
Вместимость — 1 человек.
Функциональная пожарная опасность — Ф5 (склад). Уровень ответственности здания — II/ Степень огнестойкости — III.
Планировочное решение
Планировка здания включает четыре помещения: склад — 51,6 м², охрана — 4,1 м², туалет — 2,9 м², котельная — 3,2 м².
Внутренние перегородки выполнены из ГВЛ толщиной 120 мм по серии 1.231.9-10. Отделка перегородок — покраска акриловой краской и керамическая плитка. Полы бетонные; в санузле — с дополнительным слоем гидроизоляции.
Предусмотрено водоснабжение (горячая и холодная вода) и бытовая канализация с устройством септика.
Конструкция полов
— Подсыпка под полы ПГС.
— Щебень фр. 20–40, уплотнённый отсевом — 200 мм.
— Пенополистирол — 200 мм.
— Плёнка п/э толщ. 0,16 мм — 1 слой.
— Ж/б фундаментная плита (бетон В20) — 400 мм.
— Бетонные полы из бетона В25, армированные металлической фиброй, с упрочнённым верхним слоем «Мастертоп 100» — 60 мм.
Архитектурно-художественное решение и отделка фасадов
Архитектурный образ здания решён в промышленном стиле. Основной фасадный материал — трёхслойные стеновые панели по ГОСТ 32603-2021 с эмалированным покрытием по технологии завода-изготовителя.
Характеристика наружной отделки:
- Фасад — трёхслойная стеновая панель по ГОСТ 32603-2021, покрытие эмалированное, колер № 1 (эмаль серая).
- Цоколь — трёхслойная стеновая панель по ГОСТ 32603-2021, покрытие эмалированное, колер № 1 (эмаль серая).
- Кровля скатная — трёхслойная кровельная панель по ГОСТ 32603-2021, покрытие эмалированное, колер № 1 (эмаль серая).
- Секционные ворота — по ГОСТ 31174-2017, металлические, заводская отделка эмалью, колер белый.
- Оконные блоки — ПВХ-профили по ГОСТ 30674-99, двухкамерный стеклопакет, сопротивление 0,60 м²·°C/Вт, цвет — эмаль белая (колер № 2) — по паспорту отделки фасадов.
- Откосы ворот и оконных проёмов — доборные алюминиевые панели.
Нормативные документы
Раздел разработан на основании требований Градостроительного кодекса Российской Федерации. Содержание раздела соответствует постановлению Правительства РФ от 16 февраля 2008 года № 87 «О составе разделов проектной документации и требованиях к их содержанию» (с изменениями на 27 мая 2022 года, редакция, действующая с 1 сентября 2022 года).
Проектные решения приняты в соответствии с действующими нормативными документами:
- СП 52.13330.2016 «Естественное и искусственное освещение».
- СП 20.13330.2016 «Нагрузки и воздействия».
- ГОСТ 32603-2021 «Панели трехслойные с металлическими облицовками и сердечником из минеральной ваты. Технические условия».
- ГОСТ 30674-99 «Блоки оконные из поливинилхлоридных профилей. Технические условия».
- ГОСТ 30674-2023 «Блоки оконные и балконные из поливинилхлоридных профилей. Технические условия».
- ГОСТ 30970-2023 «Блоки дверные из поливинилхлоридных профилей. Общие технические условия».
- ГОСТ 31174-2017 «Ворота металлические. Общие технические условия».
- ГОСТ 57837-2017 «Двутавры стальные горячекатаные с параллельными гранями полок. Технические условия».
- ГОСТ 30245-2003 «Профили стальные гнутые замкнутые сварные квадратные и прямоугольные для строительных конструкций. Технические условия».
- ГОСТ 8240-97 «Швеллеры стальные горячекатаные. Сортамент».


