Задачи, исходные данные и выполненные работы
Задача: разработка проектной документации перепланировки 3-комнатной квартиры в Индустриальном районе города Хабаровска.
Исходные данные: угловая квартира общей площадью 48,1 м² (комнаты 2+1) расположена на 4 этаже панельного жилого дома 1969 года постройки.
Выполненные работы: разработка архитектурно-планировочных решений, подготовка проектной документации для согласования перепланировки, в установленном законом порядке.
Объект перепланировки
Объект — жилое помещение (квартира) в составе многоквартирного дома (МКД).
Год постройки МКД — 1969.
Количество жилых комнат — 3.
Этаж/этажность — 4/5.
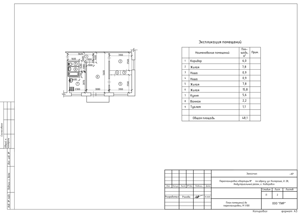
Общая площадь квартиры до перепланировки — 48,1 м².
Жилая площадь квартиры до перепланировки — 31,4 м².
Состав помещений — коридор, 3 комнаты, 2 ниши, кухня, ванная, туалет.
Высота помещений — 2,50 м.
Наружные стены — железобетонные панели.
Перегородки — железобетонные панели, деревянные.
Перекрытия — железобетонные панели.
Архитектурно-планировочное решение
Проект разработан по заданию и с учётом пожеланий заказчиков. Проектное предложение предусматривает:
— демонтаж внутренней ненесущей перегородки из дерева для объединения двух комнат;
— демонтаж внутренней ненесущей перегородки из дерева между туалетом и ванной для устройства санузла;
— закладку дверных проёмов кирпичом;
— демонтаж дверных блоков деревянных;
— демонтаж ниш.
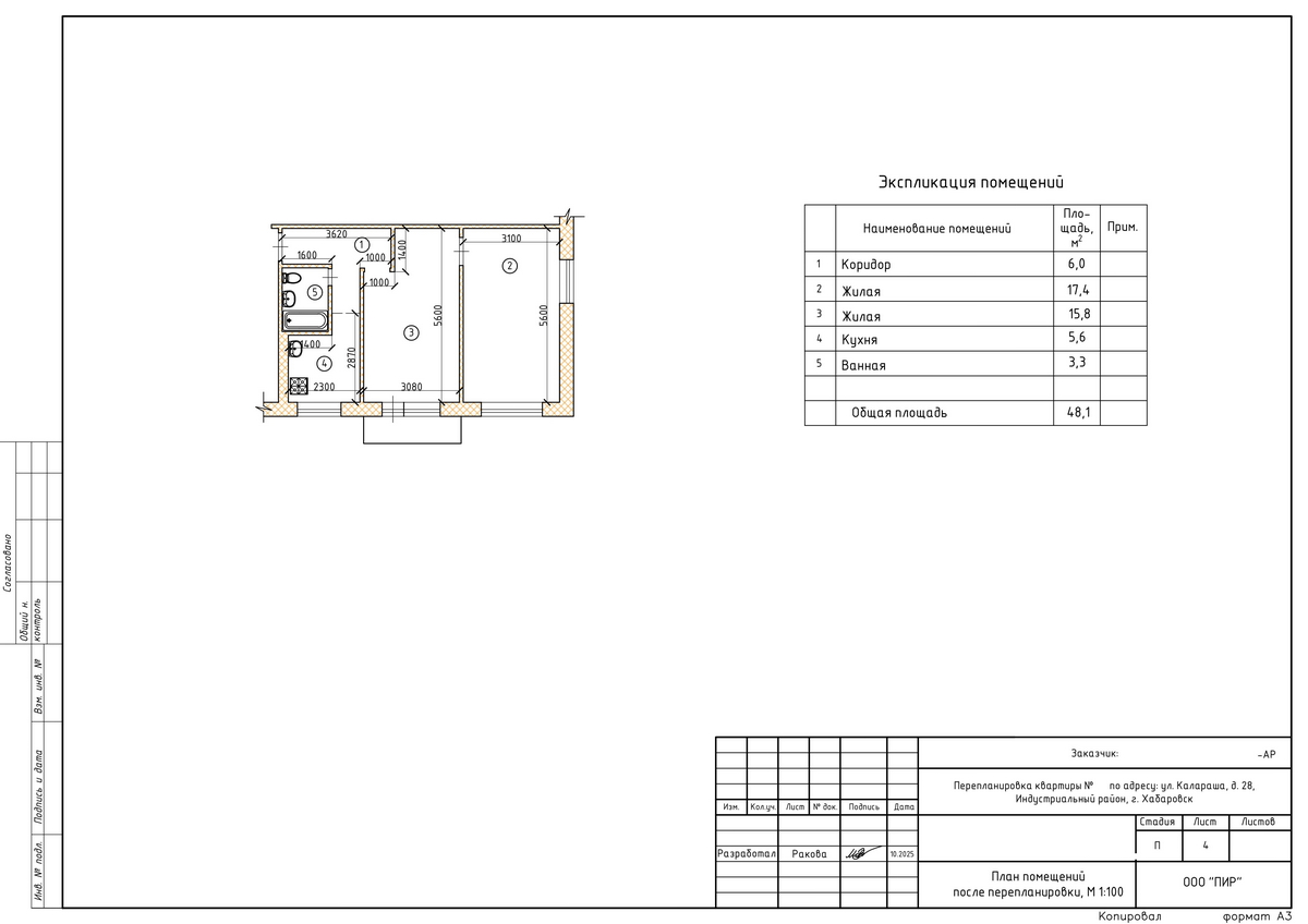
В ходе перепланировки оптимизировано внутреннее пространство, и повышен комфорт проживания. Объединены две комнаты по 7,8 м² — демонтированы перегородки и ниши, одна дверь заложена. Создано единое светлое помещение площадью 17,4 м² с двумя окнами. Это улучшило инсоляцию, вентиляцию и дало возможность гибкого зонирования.
Ванная и туалет (2,2 и 1,1 м²) объединены в санузел 3,3 м². Решение позволило рациональнее использовать площадь, установить современное оборудование и улучшить эргономику.
Выполнен демонтаж дверных блоков между коридором, кухней и жилым помещением. Такое решение улучшило естественное освещение коридора и обеспечило более свободное перемещение внутри квартиры.
Перепланировка помещения выполняется без нарушения несущих конструкций элементов здания и не оказывает влияние на их устойчивость.
Все сантехнические приборы подключаются к существующим стоякам ХВС, ГВС и канализации. Сточные воды отводятся в домовую канализацию, стояки не изменяются. Отопление — от существующих стояков, система не изменяется. Освещение — от существующих окон.
Монтаж сантехнических приборов и их подключение проводятся с учётом общих требований и рекомендаций, указанных в СП 73.13330.2016 «Внутренние санитарно-технические системы» и СП 30.13330.2020 «Внутренний водопровод и канализация здания». В помещении санузла и кухни предусмотрена гидроизоляция плит перекрытия с заходом на стены всю высоту замачивания.
Акты на скрытые работы:
— Акт на монтаж скрытой электропроводки.
— Акт на гидроизоляцию полов.
Технико-экономические показатели жилого помещения после перепланировки и переустройства
Общая площадь квартиры после проведения перепланировки — 48,1 м², жилая – 33,2 м². Состав помещений: коридор, 2 комнаты, санузел, кухня.
Нормативные документы выполненных проектных работ
Проект перепланировки и переустройства квартиры по адресу: г. Хабаровск, ул. Калараша, д. 28 выполнен проектной компанией «ПИР» в соответствии с действующими нормами и правилами и предусматривает мероприятия, обеспечивающие пожарную безопасность эксплуатации здания, при соблюдении их заказчиком и подрядчиком.
При проектировании соблюдены нормы СНиП по противопожарной безопасности эксплуатации объекта и требования санитарно-эпидемиологической службы.
Проектные решения приняты в соответствии с действующими нормативными документами:
- СанПиН 2.1.3684-21 «Санитарно-эпидемиологические требования к содержанию территорий городских и сельских поселений, к водным объектам, питьевой воде и питьевому водоснабжению, атмосферному воздуху, почвам, жилым помещениям, эксплуатации производственных, общественных помещений, организации и проведению санитарно-противоэпидемических (профилактических) мероприятий».
- СП 54.13330.2022 «Здания жилые многоквартирные».
- Федеральный закон № 123-ФЗ «Технический регламент о требованиях пожарной безопасности».


