Задачи, исходные данные и выполненные работы
Задача: обмерные и проектные работы в рамках модернизации системы теплоснабжения пивоваренного филиала «АМУР ПИВО», с целью подготовки исходных данных для разработки проектных решений по разделу «Отопление, вентиляция и кондиционирование воздуха, тепловые сети» (ИОС4) и размещения нового технологического оборудования.
Исходные данные: двухэтажное здание с несущим металлическим каркасом и кирпичными стенами, ГПЗУ, задание заказчика, действующая архитектурно-строительная документация.
Выполненные работы: проведение обмерных работ, выполнение рабочих чертежей основного комплекта, определение геометрических параметров зоны установки нового технологического оборудования, подсчёт количественных показателей демонтируемого оборудования.
Объемно-планировочные и архитектурные решения
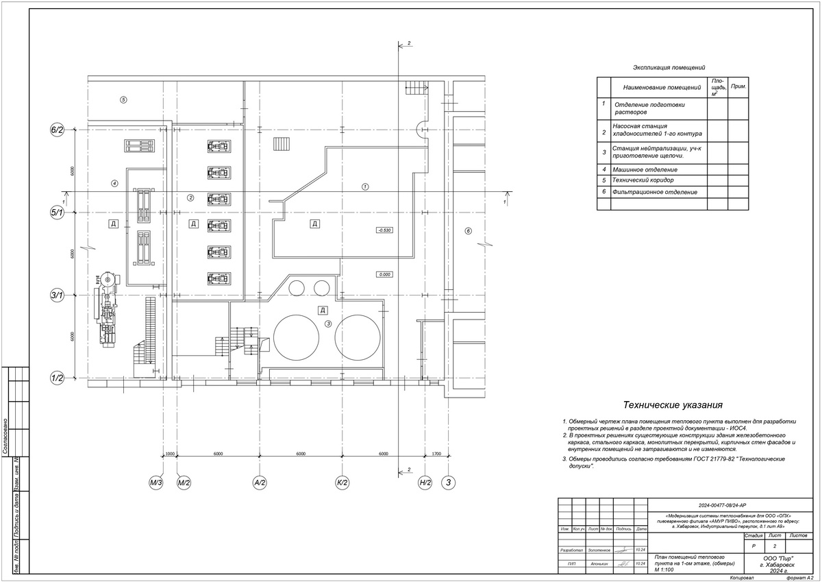
Рабочая документация разработана в составе комплекта АР для подготовки проектных решений по разделу ИОС4. Обмерные чертежи отражают фактическое состояние помещений теплового пункта, включая планировку, конструктивные элементы, несущие и ограждающие конструкции.
Проектом предусмотрено:
- сохранение существующих конструкций железобетонного и стального каркаса, монолитных перекрытий, кирпичных стен фасадов и внутренних перегородок;
- отсутствие изменений несущих и ограждающих элементов здания;
- фиксация геометрических параметров для размещения нового технологического оборудования.
Выполненные работы
Проведены обмерные работы помещений теплового пункта на 1-м и 2-м этажах. Выполнены рабочие чертежи основного комплекта АР, включающие:
- планы помещений теплового пункта (1-й и 2-й этажи) — М 1:100;
- разрезы 1-1, 2-2, 3-3, 4-4, 5-5 — М 1:50;
- виды 1–3 (обмеры);
- ведомость демонтажных работ.
Определены геометрические параметры зоны установки нового технологического оборудования. Выполнен подсчёт количественных показателей демонтируемого оборудования.
Нормативные документы выполненных проектных работ
Рабочая документация разработана проектной организацией «ПИР» в соответствии с градостроительным планом земельного участка, заданием на проектирование, техническими регламентами, в том числе устанавливающими требования по обеспечению безопасной эксплуатации зданий, строений, сооружению и безопасного использования прилегающих к ним территории, требованиями Федерального закона от 30.12.2009 № 384-Ф3 «Технический регламент безопасности зданий и сооружений», и соблюдением технических условий.
- СП 20.13330.2016 «Нагрузки и воздействия»;
- ГОСТ 21779-82 «Технологические допуски»;
- ГОСТ 30732 «Трубы и фасонные изделия стальные с тепловой изоляцией из пенополиуретана в полиэтиленовой оболочке. Технические условия»;
- действующими нормами и правилами проектирования, обеспечивающими надёжность и безопасность эксплуатации объекта.




