Задачи, исходные данные и выполненные работы
Задача: модернизация системы теплоснабжения пивоваренного филиала ООО «ОПХ» «Амур Пиво» в г. Хабаровске с целью повышения надёжности и эффективности работы центрального теплового пункта.
Исходные данные: задание заказчика, действующая архитектурно-строительная документация и технические условия.
Выполненные работы: разработана рабочая документация на тепломеханические решения теплового пункта (раздел ТМ), включающая демонтаж устаревшего оборудования, монтаж новых теплообменников, насосов и трубопроводной арматуры, а также внедрение автоматизированного управления ЦТП.
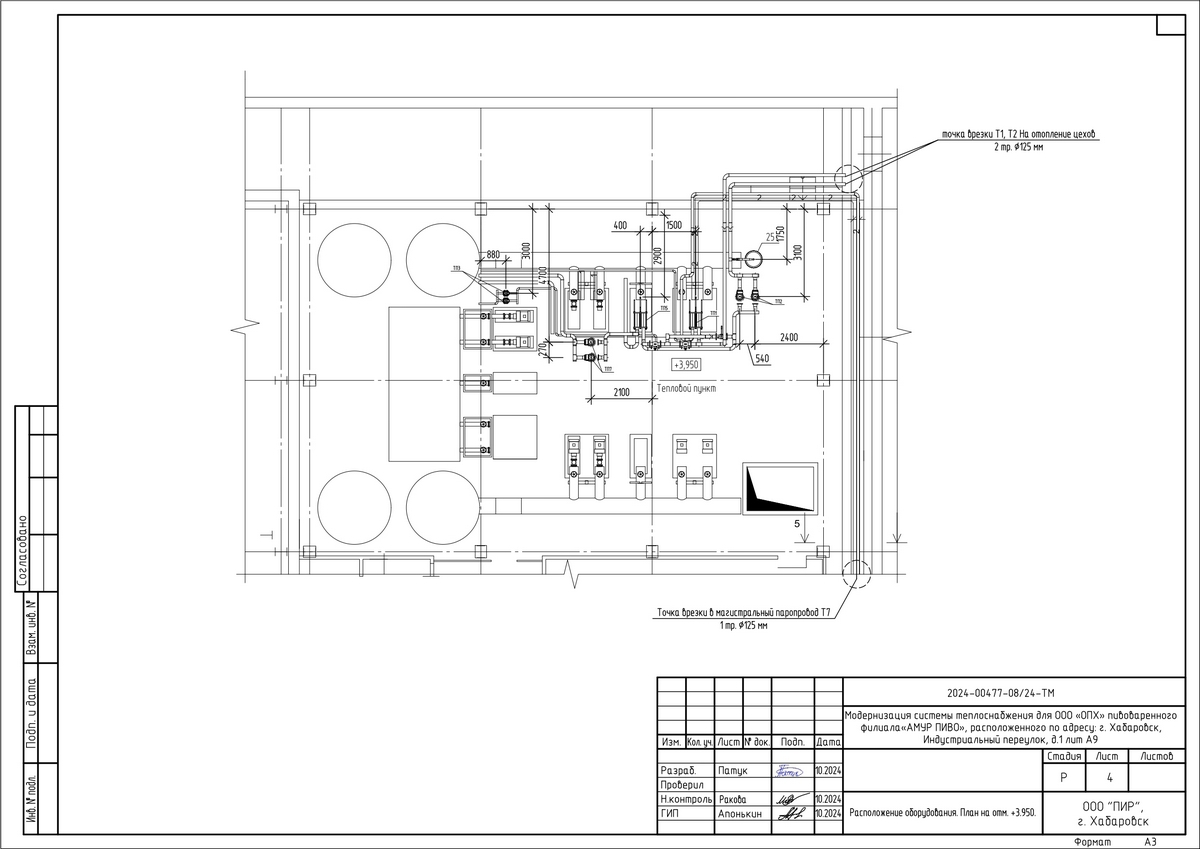
Проектные решения по модернизации ЦТП
Проектом модернизации системы теплоснабжения (ЦТП) предусматривается:
— демонтаж существующего пароводяного теплообменника, циркуляционных насосов, трубопроводов и запорно-регулирующей арматуры в действующем ЦТП;
— монтаж в выделенном заказчиком помещении нового ЦТП с двумя пластинчатыми теплообменниками;
— монтаж закрытого расширительного бака;
— монтаж насосов подачи конденсата и подпиточных насосов;
— установка существующих циркуляционных насосов;
— монтаж трубопроводов, необходимой предохранительной, трубопроводной и регулирующей арматуры;
— выполнение тепловой изоляции и маркировки трубопроводов.
Расчётные параметры
- Расчётная температура наружного воздуха для проектирования систем отопления в зимний период — минус 29° C.
- Теплоноситель — пар с давлением 7 бар (температура 171° C) и конденсат с температурой 90–70° C.
- Во внутреннем (сетевом) контуре системы теплоснабжения — вода с температурой 60–40 °C.
- Расчётное давление в сетевом контуре на выходе из ЦТП — 6,0 кгс/см², на выходе в котельную — не менее 3,0 кгс/см².
ЦТП автоматизировано, постоянное пребывание обслуживающего персонала не требуется. Трубопроводы от предохранительных клапанов выводятся в дренажный приямок с видимым разрывом струи непосредственно возле клапана.
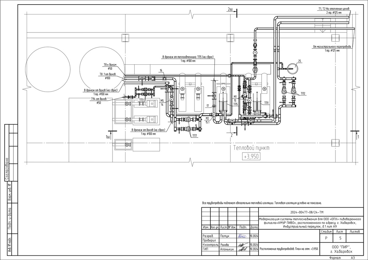
Технические требования по трубопроводам
- Трубопроводы теплоснабжения принимаются из стальных электросварных труб по ГОСТ 10704-91 (сортамент) из стали Ст. 5 по ГОСТ 1050-88 (поставка по группе В ГОСТ 10705-80*).
- Тип соединений трубопроводов — сварные соединения встык с двухсторонней разделкой кромок. Технология сварки — поворотные и неповоротные стыки.
- Детали трубопроводов изготавливаются из стали Ст. 5 по ГОСТ 1050-2013.
- Крепёжные детали — из стали Ст. 3Сп по ГОСТ 380-2005.
- Крепление трубопроводов выполнять по чертежам.
- Окраску и маркировку трубопроводов производить по ГОСТ 14202-69.
- Трубопроводы прокладывать с уклоном 0,002 в сторону движения транспортируемой среды.
- В нижних точках устанавливаются шаровые краны для спуска воды, в верхних — для выпуска воздуха.
- Точки подключения трубопроводов Т8, Т8.1, Т94, Т96 к бакам запаса конденсата, а также точки вывода сбросных трубопроводов в дренаж от баковых ёмкостей и теплообменника ТП5 уточняются по месту при монтаже.
Тепловая изоляция оборудования и трубопроводов
Оборудование и трубопроводы с температурой поверхности свыше 45° C подлежат тепловой изоляции. Тип изоляционных конструкций выбран в зависимости от вида и температуры теплоносителя в соответствии с СП 61.13330.2012 «Тепловая изоляция оборудования и трубопроводов». В качестве основного теплоизоляционного материала для трубопроводов с температурой среды до 250° C принята трубная изоляция Rockwool. В качестве антикоррозийного покрытия предусмотрена краска БТ-177 по грунтовке ГФ-021.
Требования к безопасной эксплуатации ЦТП
- Монтаж оборудования и трубопроводов выполнять в соответствии с требованиями СП 73.13330.2012 «Внутренние санитарно-технические системы» и Правилами технической безопасности, утверждёнными приказом Минтруда РФ от 11.12.2020 № 883н.
- При монтаже ЦТП составляются акты на следующие виды скрытых работ:
 - гидравлические испытания технологических трубопроводов;
- индивидуальные испытания смонтированного оборудования;
- комплексные испытания ЦТП.
 
- Испытания оборудования, установок и систем теплопотребления на плотность и прочность производятся после промывки.
- Давление испытания для парового контура — 10,5 кгс/см², для сетевого контура — 9 кгс/см².
- Результаты оформляются актом.
- Опробование систем проводится после получения положительных результатов испытаний.
Специализированная монтажная или эксплуатационная организация обязана применять такие виды и объёмы контроля, которые обеспечивают выявление недопустимых дефектов и высокое качество монтажа.
ЦТП подлежит периодическому осмотру не реже одного раза в неделю управленческим персоналом или специалистами эксплуатационной организации по договору. Результаты осмотров фиксируются в оперативном журнале.
В случае аварийной ситуации потребитель тепловой энергии обязан уведомить диспетчера или администрацию эксплуатационного предприятия и принять меры по локализации аварии до прибытия персонала.
Нормативные документы выполненных проектных работ
Рабочая документация разработана проектной организацией «ПИР» в соответствии с градостроительным планом земельного участка, заданием на проектирование, техническими регламентами, в том числе устанавливающими требования по обеспечению безопасной эксплуатации зданий, строений, сооружению и безопасного использования прилегающих к ним территории, требованиями Федерального закона от 30.12.2009 № 384-Ф3 «Технический регламент безопасности зданий и сооружений», и соблюдением технических условий.
- Федеральный закон от 30.12.2009 № 384-ФЗ «Технический регламент о безопасности зданий и сооружений».
- Приказ Минтруда России от 11.12.2020 № 883н «Об утверждении Правил по охране труда при эксплуатации тепловых энергоустановок».
- СП 510.1325800.2022 «Тепловые пункты и системы внутреннего теплоснабжения».
- СП 130.13330.2012 «Строительная климатология».
- СП 73.13330.2012 «Внутренние санитарно-технические системы зданий».
- СП 61.13330.2012 «Тепловая изоляция оборудования и трубопроводов».
- СП 48.13330.2011 «Организация строительного производства».
- ГОСТ 10704-91 «Трубы стальные электросварные. Сортамент».
- ГОСТ 10705-80* «Трубы стальные электросварные. Технические условия».
- ГОСТ 1050-88 «Прокат из качественной конструкционной углеродистой стали».
- ГОСТ 1050-2013 «Стали конструкционные качественные. Общие технические условия».
- ГОСТ 380-2005 «Сталь углеродистая обыкновенного качества».
- ГОСТ 14202-69 «Цветовая маркировка трубопроводов».



