Задачи и исходные данные
Задача: разработка проектной документации перепланировки и переустройства 2-комнатной квартиры в Центральном районе города Хабаровска.
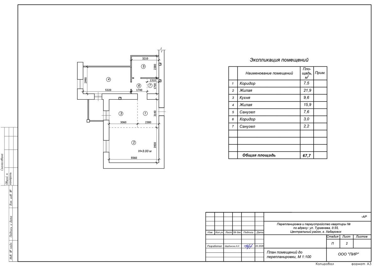
Исходные данные: квартира общей площадью 67,7 м² расположена на 13 этаже кирпичного жилого дома 2007 года постройки.
Объект перепланировки
Объект — жилое помещение (квартира) в составе многоквартирного дома (МКД).
Год постройки МКД — 2007.
Количество жилых комнат — 2.
Этаж/этажность — 13/20.
Общая площадь квартиры до перепланировки — 67,7 м².
Жилая площадь квартиры до перепланировки — 37,8 м².
Состав помещений — 2 коридора, 2 жилые комнаты, 2 санузла, кухня.
Высота помещений — 3,0 м.
Наружные стены — кирпичные.
Перегородки — кирпичные.
Перекрытия — железобетонные плиты.
Архитектурно-планировочное решение
Выполненные работы: разработка архитектурно-планировочных решений, подготовка проектной документации для согласования перепланировки, в установленном законом порядке.
Проект разработан по заданию и с учётом пожеланий заказчиков. Проектное предложение предусматривает:
— возведение новых перегородок из ПГП;
— устройство дверного проёма и установку дверного блока;
— устройство наливных полов с гидроизоляцией в помещениях санузла и кухни;
— переустройство (установка унитаза, ванны, раковин, электрической плиты).
Преимущества решений
- Установка перегородок позволила разделить большую открытую площадь на функциональную кухню-гостиную и отдельную жилую комнату, создав приватную зону для отдыха.
- В кухонной зоне выделено место под встроенный шкаф, что позволяет спрятать бытовую технику или запасы продуктов, не загромождая интерьера.
- Переоборудование малого санузла в гардеробную даёт полноценное место для хранения верхней одежды и вещей прямо при входе.
- Использование раздвижных конструкций вместо распашных позволяет эффективно использовать каждый квадратный метр в узких проходах и коридорах.
- Несмотря на новые перегородки, общая площадь квартиры осталась прежней (67,7 м²), а высокие потолки (3,00 м) поддерживают ощущение объёма в новых комнатах.
Перепланировка помещения выполняется без нарушения несущих конструкций элементов здания и не оказывает влияние на их устойчивость.
Все сантехнические приборы подключаются к существующим стоякам ХВС, ГВС и канализации. Сточные воды отводятся в домовую канализацию, стояки не изменяются. Отопление — от существующих стояков, система не изменяется. Освещение — от существующих окон.
Монтаж сантехнических приборов и их подключение проводятся с учётом общих требований и рекомендаций, указанных в СП 73.13330.2016 «Внутренние санитарно-технические системы» и СП 30.13330.2020 «Внутренний водопровод и канализация здания». В помещении санузла и кухни предусмотрена гидроизоляция плит перекрытия с заходом на стены всю высоту замачивания.
Проектом предусмотрено подключение электрической плиты с учётом выполнения технических условий:
— Электрическую плиту подключить к отводу кабеля для электрической плиты в месте, предусмотренном застройщиком.
— По окончании работы предъявить представителю управляющей компании.
— Составить акт.
Переустройство помещений, а также монтаж электрического кабеля и подключение электрической плиты производится силами лицензированной организации, имеющей допуски.
Акты на скрытые работы:
— Акт на монтаж скрытой электропроводки.
— Акт на гидроизоляцию полов.
— Акт на монтаж перегородок из ПГП.
Технико-экономические показатели жилого помещения после перепланировки и переустройства
Общая площадь квартиры после проведения перепланировки — 67,7 м², жилая – 32,7 м². Состав помещений: 4 коридора, 2 жилые комнаты, кухня, санузел, гардеробная, шкаф.
Нормативные документы выполненных проектных работ
Проект перепланировки и переустройства квартиры по адресу: г. Хабаровск, ул. Тургенева, д. 55 выполнен проектной компанией «ПИР» в соответствии с действующими нормами и правилами и предусматривает мероприятия, обеспечивающие пожарную безопасность эксплуатации здания, при соблюдении их заказчиком и подрядчиком.
При проектировании соблюдены нормы СНиП по противопожарной безопасности эксплуатации объекта и требования санитарно-эпидемиологической службы.
Проектные решения приняты в соответствии с действующими нормативными документами:
- СанПиН 2.1.3684-21 «Санитарно-эпидемиологические требования к содержанию территорий городских и сельских поселений, к водным объектам, питьевой воде и питьевому водоснабжению, атмосферному воздуху, почвам, жилым помещениям, эксплуатации производственных, общественных помещений, организации и проведению санитарно-противоэпидемических (профилактических) мероприятий».
- СП 54.13330.2022 «Здания жилые многоквартирные».
- Федеральный закон № 123-ФЗ «Технический регламент о требованиях пожарной безопасности».


